Technical Details
Original project details produced for each project including the specifications, research findings, and design requirements; to convey information needed on different stages of development.
Building Performance Details
Materials details outline the material's thicknesses and physical properties like thermal mass and U value for passive strategy and performance analysis.


Passive Strategies - EEM
Detail on materials specifications for a residential project in Hannover mainly relying on passive strategies to achieve a Net Zero project.
Technical detail produced for the coordination of architecture - structure - MEP models coordination for the project CAIXA forum Zaragoza by Carme Pinos
Coordination Details




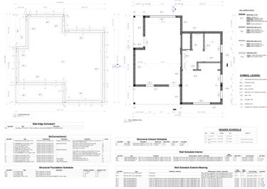
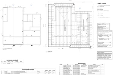
Structural Details
Structural detailing and specifications of steel structure and concrete element with its reinforcements; both in axonometric views and 2D details


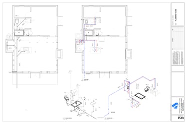
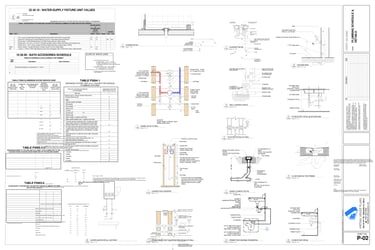
MEP Details
Plumbing system details of supply and sanitary systems are based on axonometric views and plan views.
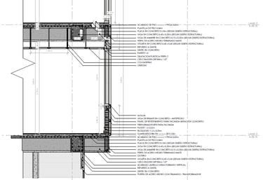
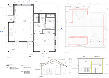
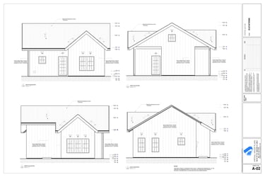
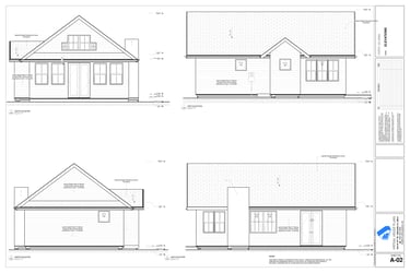
Architectural detail of facade design and junctions detailing its relation to architectural and structural elements of a residential building project.
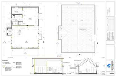
Architectural Details


Gallery
Additional samples of technical details
































































































