
VHP 159
As-Built Residential Unit model


Gallery
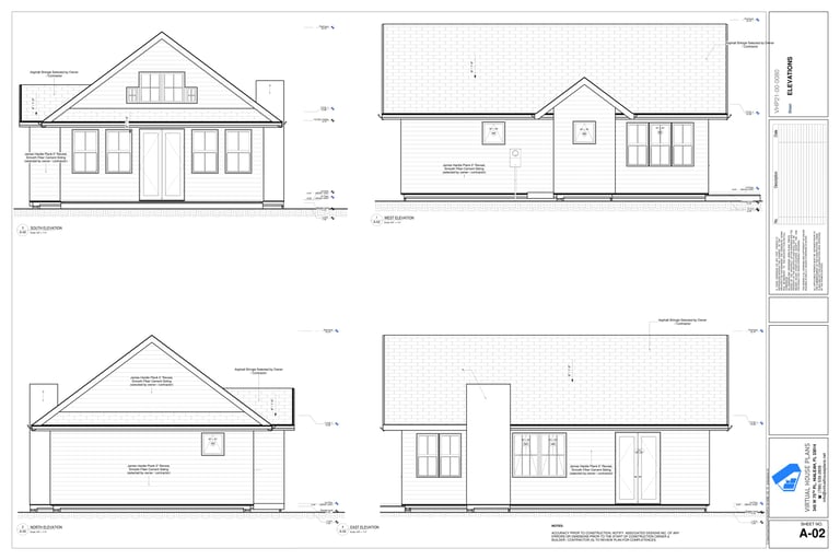
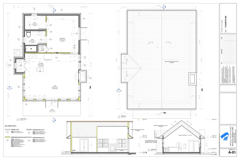
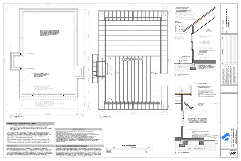
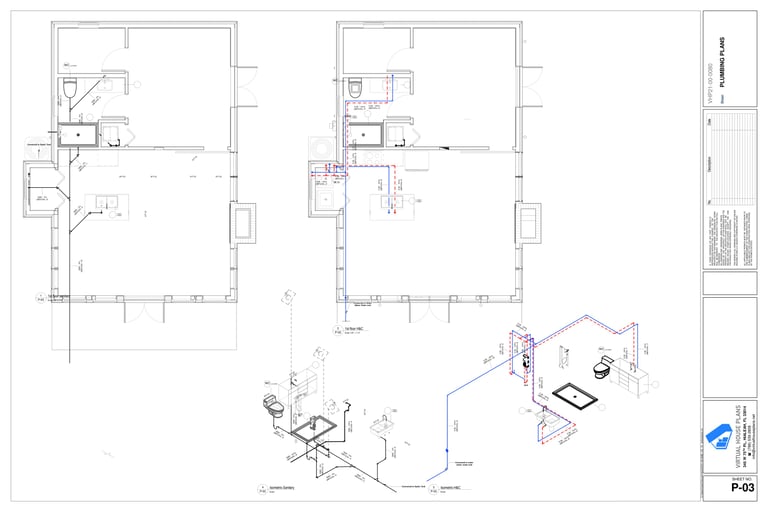
These projects where delivered in record time to be constructed and overseen by third parties. This demanded a very high level of detail to optimize resources and eliminate re-proceses





















These projects where delivered in record time to be constructed and overseen by third parties. This demanded a very high level of detail to optimize resources and eliminate re-proceses


















