
Residential Project - De Cambil 127 Smart House - Club House

High-End Twin Residential Project
Twin projects with the highest quality and exclusive interior design aimed at 2 differentiated audiences: young, modern, and fashionable families; and a more conventional and atemporal segment. Together these projects reached over 15.000 Sqm of luxurious materials and sound design brought to one of the most exclusive neighborhoods in Bogotá, Colombia
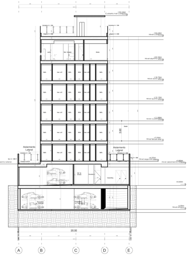
Planning - Construction simulation
Enjoy making a delicious pizza in the oven or a barbecue in the best style at the Gourmet BBBQ Zone.
Have fun watching a game of your favorite team on the Giant Screen of the Multimedia Terrace.
Bonfire area for a delicious wine.
Zen Zone, is ideal for practicing yoga or meditating.
Contemplative Area is where you can read a good book or chat with good company.
CO-WORKING: A space with all the comforts and technology to work.
Amenities
Some characteristics of this project
Lobby 3.60m Height.
Private Mail Box in the Ground Floor
Panoramic lift.
Electric scooter private parking closet.
Bicycle parking racks.
Eco-charge spots.
Visitors parking places.
Flexible, modern spaces, full of design, for those who enjoy details, with 1, 2 or 3 bedrooms.
Each space in your new apartment reflects spaciousness, with heights of 2.75 m.

Gallery
Some of the results of this beautiful process cover: basic models to renders, animations, constructive plans, and technical details.
































